دوشنبه، 12 آبان 1404
طراحی نقشه های فاز دو

طراحی نقشه های فاز دو

همانطور که میدانید بعد از مشخص کردن و بررسی سایت پروژه از نظر های مختلف و آنالیز کلی، کار به طراحی پلان معماری و سازه مورد نظر میرسد تا در این مرحله طرحی برای سایت در نظر گرفته شود و این طرح را پیاده سازی می شود و پس از انجام این موارد و بررسی کلی طرح ساختمان نقشه سازه مورد نظر را ترسیم می نمایند تا طرحی کلی در دسترس باشد و عوامل اجرایی با طرح و فرم اصلی ساختمان آشنا شوند که به این نقشه هایی که ویژگی های معماری ساختمان که در آنها روابط و اطلاعات محدودی از جمله نوع استقرار بنا و روابط فضا ها و مشخصات نمای ساختمان را دارا هستند نقشه فاز یک معماری می گویند .

برای معرفی طرح و سازه به مهندسین و سایر عوامل میتوان از این نقشه ها استفاده نمود تا آنها را با فرم و طرح ساختمان و اطلاعات فراتری در این رابطه آشنا نمود و نظر سرمایه گذاران را راجع به این طرح و نمای ساختمان جلب نمود , همچنین میتوان امکانات مربوط به اجرای سازه و تأسیسات ساختمان را ارزیابی نمود و هزینه و زمان اجرای پروژه را برآورد کرد یعنی با استفاده از نقشه فاز یک سازه نیز میتوان عملیات متره و برآورد را انجام داد .


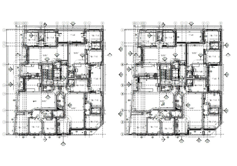
معرفی نقشه فاز ۲

نقشه های فاز یک ساختمان دارای اطلاعات محدودی هستند که فقط در حد معرفی و آشنایی با پروژه اطلاعات دارند اما نقشه های فاز ۲ معماری دارای تمامی اطلاعات می باشد که از این اطلاعات میتوان به اطلاعات اجرایی همچون نوع فونداسیون‌ ها , ابعاد ستون‌ ها , مسیر لوله‌ ها , جنس دیوار ها , مصالح کف سازی , جنس و جزئیات درها و پنجره‌ ها , محل استقرار لامپ‌ ها و … اشاره نمود که در تعریف کلی باید گفت که نقشه های فاز ۲ تمامی جزئیات اجرایی پروژه را دارا هستند . نقشه فاز ۲ همان نقشه هایی هستند که برای اجرایی ساختن پروژه ها مناسب هستند .

نقشه های فاز ۲ شامل :

نقشه های فاز ۲ معماری :

این نقشه ها و شیت های مربوطه توسط مهندس معمار تهیه میشوند و اطلاعات معماری از قبیل مشخصات مصالح و جزئیات اجرایی قسمت‌ های مختلف ساختمان را دارا هستند و در اجرای پروژه لازم و ضروری هستند .

نقشه های فاز ۲ سازه :

این نقشه ها و شیت های مربوطه توسط مهندس محاسب طراحی میشوند و مشخصات فونداسیون , ستون‌ ها , تیر ها و پوشش سقف‌ ها و ... را دارا هستند .

نقشه های تاسیسات مکانیکی :

این نقشه ها و شیت های مربوطه سیستم آب رسانی , دفع فاضلاب , نحوه ی گرمایش و سرمایش را دارا هستند و این اطلاعات را در اختیار میگذارند .

نقشه های تاسیسات الکتریکی :

این نقشه ها توسط مهندس برق طراحی میشود و شامل شیت ها و مواردی از جمله سیستم روشنایی , کلید و پریز و تلفن ساختمان هستند .